提供:ソーシャルワイヤー株式会社
2025年12月6日、奈良市三条エリアに貸切一軒家「Cocon Nara Sanjyo」がオープンします。JR奈良駅から徒歩7分の好立地に位置し、最大12名まで宿泊可能です。広々とした空間と幻想的なバスルームが特徴で、大人数での家族旅行やグループ旅行に最適な選択肢として注目されています。観光名所へのアクセスも良好で、特別な奈良滞在が期待されます。
Cocon Nara Sanjyoの施設概要
「Cocon Nara Sanjyo(ここん ならさんじょう)」は、2025年12月6日に古都奈良の三条エリアに誕生する宿泊施設です。JR奈良駅から徒歩7分という優れたロケーションにあり、最大12名まで宿泊できる一棟貸しのスタイルが特徴です。黒を基調としたモダンな外観は、奈良の街並みに溶け込みながらも存在感を放っています。

抜群の立地とアクセス
「Cocon Nara Sanjyo」は奈良市の中心地、三条エリアに位置しており、JR奈良駅から徒歩7分というアクセスが魅力です。奈良公園、東大寺、興福寺といった主要観光スポットへも徒歩圏内で、時間を気にせず観光を満喫できる利便性を提供します。三条通りにはカフェや雑貨店、地元グルメの飲食店も点在しており、奈良の日常に触れることも可能です。
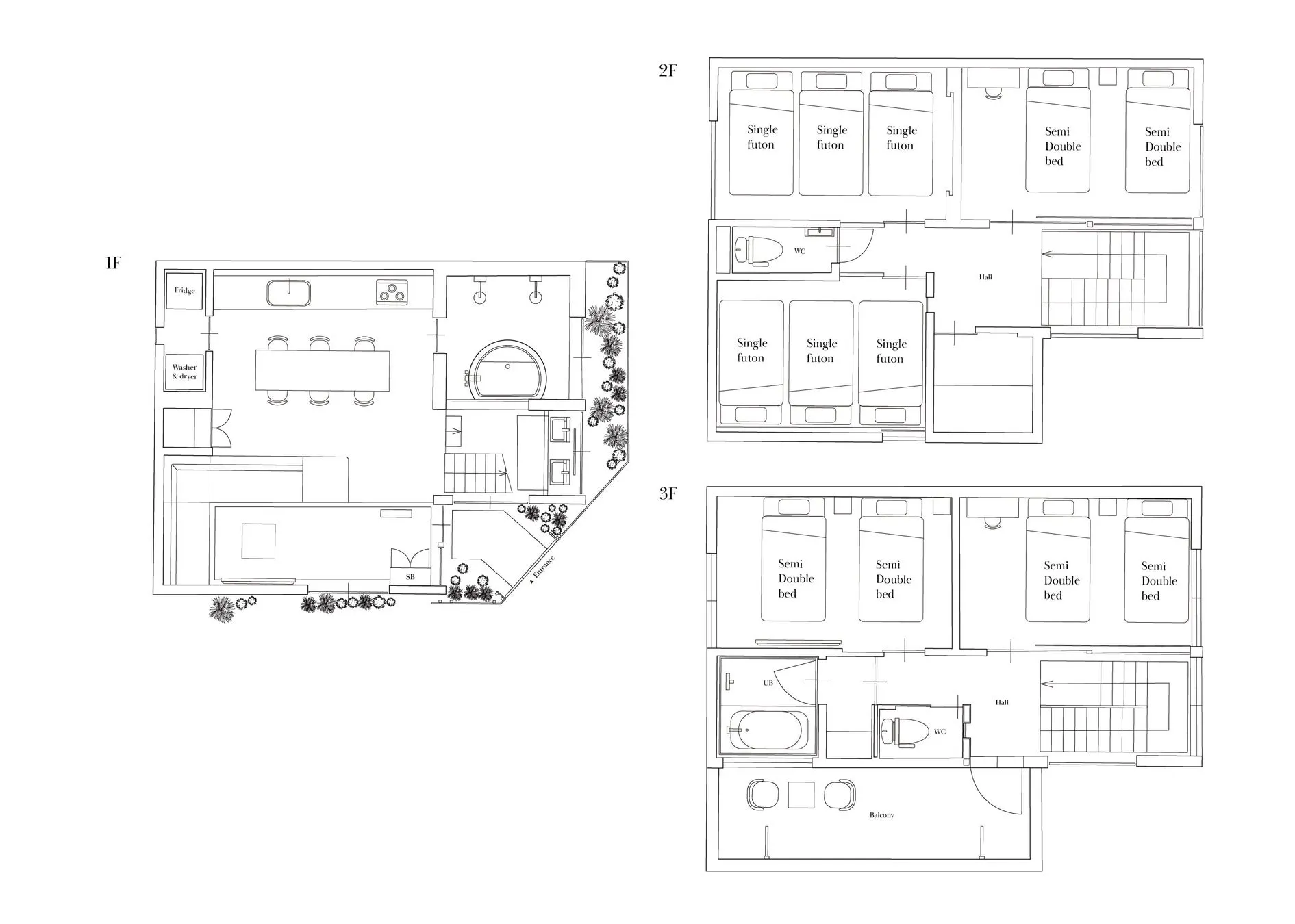
大人数で快適な一棟貸し空間
3階建ての一棟貸しスタイルは、プライベート感を重視するグループ旅行に最適です。最大12名まで宿泊可能な広々とした間取りは、家族旅行、友人同士のグループ旅行、会社の研修旅行など、様々なシーンに対応します。リビングダイニングは、大人数で食卓を囲んだり、旅の思い出を語り合ったりするのに十分な広さがあります。各階に寝室が配置されているため、大人数でもそれぞれのプライベートが確保されるように設計されています。



幻想的なバスルーム
リビング横に設けられたバスエリアには、半円状の埋め込み型バスタブが設置されており、ゆったりとしたバスタイムを提供します。大人数での滞在を考慮し、シャワーは2台用意されています。夜にはガラス越しに見える木々がライトアップされ、バスルームは幻想的な空間へと変化します。この特別な夜景は、滞在の思い出を一層深めることでしょう。


機能性とデザインを兼ね備えた洗面スペース
1階にはガラス張りの開放感ある洗面スペースが広がります。ダブルボウルの洗面台が設置されており、朝の忙しい時間帯でもグループやファミリーがスムーズに支度できるよう配慮されています。足元にはタイルや石材といった自然素材が組み合わされ、空間に温かみと上質さを加えています。夜には足元のライトが優しく灯り、昼間とは異なる幻想的なムードを演出します。


多様なニーズに対応する寝室構成
寝室は、旅のメンバーの多様なニーズに対応できるように設計されています。
* 洋室3部屋: それぞれにセミダブルベッドが2台ずつ配置されており、快適な睡眠をサポートします。
* 和室: シングル布団が3組ずつ用意されており、畳の上でくつろぎたい方や、小さなお子様連れのファミリーにも適しています。
和室と洋室の組み合わせにより、大人数での滞在に柔軟性をもたらします。温かみのある照明と落ち着いたインテリアが、心からくつろげるひとときを演出します。


間取り図からも各フロアのゆとりが確認できます。

運営ブランドと企業理念
「eni.」が描く新しい旅のカタチ
「Cocon Nara Sanjyo」は、eni.(エニ) というブランドが手掛ける施設の一つです。eni.のコンセプトは、旅する人の「物語」を大切にすることです。

eni.は、単なる宿泊施設ではなく、「人生を少しだけステイしませんか?」という問いかけを通じて、日常から離れて本来の自分を取り戻せるような空間づくりを目指しています。こだわり抜かれた世界観とインテリアは、旅を特別なものにするでしょう。
eni.公式HP:https://go2eni.com/prtimes_eni
Instagram:https://go2eni.com/prtimes_eniinst
株式会社LDKプロジェクトの企業哲学
「Cocon Nara Sanjyo」を運営するのは、大阪を中心に民泊施設を手掛ける株式会社LDKプロジェクトです。同社の企業哲学は「人生に綴られるひとときをつくる」であり、お客様の時間を預かり、快適で価値ある空間とサービスを提供することを目指しています。

設備、サービス、インテリア、清掃に至るまで心を込めて提供し、訪れた人の「人生」という物語の1ページになるような、思い出に残る時間と体験を提供しています。また、LDKプロジェクトは遊休不動産の活用を検討している方への民泊運営サポートも行っています。
株式会社LDKプロジェクト 公式HP:https://ldk-pjt.com/prs_ldk_hp
民泊代行ページ:https://ldk-pjt.com/ldk_daiko
Cocon Nara Sanjyo 宿泊情報
料金プランとコストパフォーマンス
「Cocon Nara Sanjyo」の宿泊情報は以下の通りです。
| 項目 | 内容 |
|---|---|
| 施設名 | Cocon Nara Sanjyo (ここん なら さんじょう) |
| 住所 | 〒630-8244 奈良市三条町593番48 |
| アクセス | JR「奈良」駅から徒歩7分 |
| オープン日 | 2025年12月6日(金) |
| 料金プラン | 25,000円~ |
| 公式予約 | https://go2eni.com/stay/cocon-narasanjyo/ |
料金プランは25,000円からとなっており、最大12名で宿泊した場合、1人あたり約2,083円からという価格になります。広々とした一棟貸しの空間、こだわりのバスルームや洗面スペース、多様なニーズに対応する寝室を利用できることを考えると、非常に高いコストパフォーマンスであると言えます。ホテルでは得られないプライベート感や、全員でリビングに集まって団らんできる時間は、大人数での旅行において特別な価値を提供します。
Cocon Nara Sanjyoは、歴史と文化が息づく奈良において、滞在そのものを特別な時間へと昇華させる場所です。観光名所への利便性に加え、デザイン性と機能性を兼ね備えた空間は、訪れる人々に新たな滞在体験をもたらします。大切な家族や友人と、奈良の魅力を深く感じながら、心に残る旅の1ページを紡ぐ場所として、Cocon Nara Sanjyoをご検討ください。
※この記事は、ソーシャルワイヤー株式会社より提供を受けて掲載しています。 記事の内容や関連画像、および発表されたサービス・商品に関するお問い合わせは、発表元である企業・団体様へ直接ご連絡ください。 なお、掲載情報は発表当時のものとなりますので最新の情報とは異なる場合がありますのでご了承ください。
